Access Statements
Access Statement
This statement does not contain personal opinions as to our suitability for those with access needs. This statement is in place to accurately describe the accommodation and facilities we offer to our guests and visitors.
Whilst every attempt has been made to ensure the accuracy of floor plans, measurements of doors, windows and rooms and any other items are approximate and no responsibility is taken for error, omission or mis-statement.
Introduction
Seaview Holidays is located on Salterns Road on the Isle of Wight. Seaview Holidays is a self-catering holiday resort called Salterns Village, offering child and pet-friendly accommodation. We offer 2 bedroom cottages, 3 bedroom cottages and 4 bedroom houses in our rental programme. We are situated a short walk from Seaview seafront with views of the nearby Hersey Nature Reserve.
The accommodation at Seaview Holidays was originally built in the early 1960’s and the internals of the properties have been refurbished several times since. Seaview Holidays is a family owned and operated business, the last of the renovations on our 4 bedroom houses were completed by the current owners in 2015. We currently have 41 properties in our rental programme which includes 26 two bedroom cottages, 4 three bedroom cottages and 11 four bedroom houses. All of our properties include an open plan kitchen and living area with bedrooms and bathroom/s. Please see cottage specifics for details on bedroom and bathroom facilities and layout.
Seaview Holidays is located in the seaside town of Seaview on the Isle of Wight. We are lucky enough to have a dog friendly beach within walking distance and a selection of pubs including the popular Boathouse and The Old Fort. The town is well known for being the home to Seaview Yacht Club, founded in 1893.
Queries and bookings are handled by our friendly reservations team who can be contacted on 01983 612330 or via email on enquiries@seaview-holidays.co.uk.
Unfortunately we are unable to offer any lift access in our accommodation, therefore, it may not be suitable for some guests with limited mobility due to the period features from the 1960’s built cottages and houses.
Pre-Arrival
The address for Seaview Holidays is; Salterns Road, Seaview, Isle of Wight PO34 5AQ. A Google Maps link can be found on our website along with our address; https://www.seaview-holidays.co.uk/contact-us.html
Our reservations team can be contacted on 01983 612330, 7 days a week between the hours of 9am-5pm. After this time, the phone put on answerphone if our site is closed. Our Reception block can be found at the beginning of Salterns Village. Reception is open between the hours of 9am-5pm Monday-Saturday and 10am-4pm on Sundays. Check-in is usually between the hours of 4pm-5pm, however, late check-ins can be arranged with prior notice.
We are dog friendly here at Seaview Holidays and allow a maximum of 2 dogs per property. We request that dogs are booked in with prior notice, a cleaning fee of £30 per dog is applicable. We kindly ask dog owners to keep their dogs on a lead at all times as we are located next to a Nature Reserve. We also ask guests to ensure that they clean up after their dogs and request that they are not left unattended in the property. There are certain types of dogs that are not permitted on our site, in accordance with the Dangerous Dogs Act 1991. Please see our full T’s&C’s for further information.
In order to get to the Isle of Wight, guests will need to use either one of two ferry companies who operate passenger and car ferries to the Isle of Wight. The ferry operator companies are called Red Funnel and Wightlink. Foot passenger only ferries are available from Southampton to West Cowes (Red Funnel) and Portsmouth to Ryde Pier Head (Portsmouth). Car ferry travel is available from Lymington to Yarmouth (Wightlink), Southampton to East Cowes (Red Funnel) and Portsmouth to Fishbourne (Wightlink). We have trade accounts with both Red Funnel and Wightlink and offer discounted car ferry travel to all of our guests.
Seaview Holidays is nestled alongside the Hersey Nature Reserve where there is an abundance of wildlife. Seaview beach is a short 5 minute walk from the accommodation at Seaview Holidays. The Village of Seaview is a 10 minute walk which boasts pubs, restaurants, boutique shops, a pharmacy and post office. The local bus company, Southern Vectis, operates the ‘Number 8’ bus which goes through Seaview, stopping off at Caws Avenue regularly. The timetable for the bus can be seen on the following link; http://www.islandbuses.info/service.shtml?serviceid=1335
There are a number of RADAR toilets in the area, the closet one being in Rope Walk, Seaview and Puckpool Park. For more information on the facilities in the area, please see the attached webpage; https://www.iow.gov.uk/
We are happy to accommodate guests who are mobility, sight or hearing impaired. However, we ask that you disclose this information at the time of booking so that you can be allocated the most suitable accommodation available and that the staff are aware for Health and Safety purposes. If you have booked through a third party company, we would ask you to contact us direct to ensure we have the appropriate information.
We do not have a lift in any of the accommodation at Seaview Holidays. Almost all our cottages are on raised decking’s with either step/s or ramp access to the property. In addition, a large percentage of our cottages have a step up into the bathroom/wet room. There are some period features which may make access difficult for people with limited mobility or guests in wheelchairs i.e. thin corridors and steep staircases. Please see cottage specifics for further details.
Arrival and Car Parking Facilities
Seaview Holidays is located on Salterns Road, just off Duver road on Seaview Seafront. Check-in is between the hours of 4pm-5pm (late check-ins can be arranged with prior notice) and we kindly ask guests to vacate the properties on their day of departure before 10am.
We have a large communal car park at the beginning of our site that can cater for 60+ cars at any one point. We do have further parking on site, however, we reserve these spaces for disabled guests and those who have a blue badge permit. We asks guests to inform us at the time of booking if they have limited mobility or hold a blue badge so that they can be allocated accommodation next too/near a space to park a vehicle.
We allow all other cars to only drive down the gravel road on site on the day of arrival and departure for the dropping off/collection of their belongings. If guests do not hold a blue badge, we kindly ask guests to park in our communal car park. This ensures there is as little traffic flow going through the site as possible, which ensures the safety of guests, children, dogs and the local wildlife and Nature Reserve.
Reception
Seaview Holidays Reception block is located at the entrance to the site and has a large sign on the front of the building which says ‘Seaview Holidays 01983 612330’.
The large communal car park is located on the field opposite the Reception Block. There is also additional parking on the gravel between the Reception Block and Café Blue.
Seaview Holidays Reception block is located on a raised decking with an additional step up to the raised decking. The steps measure 21cm and 11cm in height, 205cm in width and 29cm in depth. The decking area of the Reception block has wooden posts with a handrail round the front and both sides of the building. There are also 3 heavy wooden picnic benches on the Reception block decking.
All guests can enter through the main door of Reception which is a double wooden door. We generally have one door open which measures 72.5cm in width. The second door also measures 72.5cm in width which gives a total width of 145cm if both doors were to be open. The Reception area is a light room with full length windows on 2 of the 4 walls. The Reception area measures 5.1m x 4.8m. The Reception has lino flooring and 3 comfortable chairs for guests to sit. 1 of the 4 walls is made up of shelves which displays holiday essentials such as toiletries, food items and souvenirs guests can purchase. Also stored on the shelves are a selection of leaflets to advertise local attractions our guests may be interested in visiting whilst on holiday.
There is a large desk along the far side of the room with two workstations to complete guests’ check-ins. Upon check-in, we confirm guests’ details, including the number of their party and an emergency contact number. We also take a copy of the lead bookers card details to store on our booking system for the duration of the stay to act as a security deposit. No pre-payment is taken, the card details are stored under GDPR & PCI DSS regulations. Card details are automatically deleted upon departure.
Guests are given a welcome pack which contains general information on their cottage, as well as essential Health and Safety information. We provide guests with 1 set of keys for their cottage and provide them with directions as well as a site map to show which cottage they will be staying in. Please note that only 1 set of keys can be provided for Health & Safety purposes per property.

2 Bedroom Cottages - Internal
Seaview Holidays has a total of 26 two bedroom cottages. The internals of all of our 2 bedroom cottages are a mirror image of one another in terms of layout and size (differences only include soft furnishings such as carpets and lino). Our 2 bedroom cottages have an open-plan kitchen and lounge area which measures 5.2m x 4.3m. The lounge has two 2 seater faux leather sofas with a coffee table, wall mounted television with Freeview and fold out dining table with 4 fold out chairs. The lounge also has built in cupboards for storage. The kitchen is furnished with a sink, toaster, kettle, microwave, oven, fridge (with small freezer compartment) and utensils. There is a fire blanket on the kitchen wall of every property.
A wet room can be found just off the kitchen and up 1 step. The step measures 16cm. The door width into the wet room measures 60cm. The wet room itself measures 2m x 1m and is tiled.
The two bedrooms are located just off the lounge. There is one double bedroom with a door width of 58cm which leads into the room measuring 2.8m x 2.1m. The double room has a bedside table with a small wardrobe. The twin bedroom also has a door width of 58cm which leads into the room measuring 2.8m x 2.1 m. The twin room has a bedside table with lamp. There is a built in cupboard in the twin room which contains the boiler for the cottage.
All our 2 bedroom cottages have electric heating, double glazed windows and a front and back entrance/exit. The rear door of the cottages (leading from the kitchen) is 69cm in width, whereas the larger patio sliding doors (leading from the lounge) have a width of 130cm.
2 Bedroom Cottages – External
All of the 2 bedroom Cottages have a heavy wooden picnic bench on the decking area and are open-plan (they are not fenced in). Apart from this, the externals of the 2 bedroom cottages differ slightly to one another. This is because some of the cottages are located on a raised decking without an additional step up to the decking and some are on a raised decking with an additional step/s up to the decking. Please see specifics below;
SA1-SA12, SA19-SA22, SA41-SA44 and SA 51-51 are located on a raised decking without an additional step up to the decking. The height of the decking leading into the sliding patio doors entrance (to the lounge) is 23cm, whereas the decking leading to the rear door entrance of the property (to the kitchen) has a height of 15cm.
SA47-SA50 are located on a raised decking with 2 additional steps leading to the patio door entrance and 1 additional step leading to the rear door entrance. The height of the steps leading into the sliding doors entrance (to the lounge) is 17cm, 18cm and 18cm with a width of 285cm and a depth of 28cm. The height of the steps leading to the rear door entrance of the property (to the kitchen) are both 19cm with a width of 250cm and a depth 29cm.

3 Bedroom Cottages - Internal
Seaview Holidays has a total of 4 three bedroom cottages. The internals of all of our 3 bedroom cottages are a mirror image of one another in terms of layout and size (differences only include soft furnishings such as carpets and lino). Our 3 bedroom cottages have an open-plan kitchen and lounge area which measures 6m x 3.8m. The lounge has two 2 seater faux leather sofas with a coffee table, wall mounted television with Freeview and fold out dining table with 6 fold out chairs. There is a built in cupboard in the lounge, located next to the toilet door, which contains the boiler for the cottage. The kitchen is furnished with a sink, toaster, kettle, microwave, oven, fridge (with small freezer compartment), washing machine and utensils. There is a fire blanket on the kitchen wall of every property.
A wet room can be found just off the kitchen and up 1 step. The step measures 17cm. The door width into the wet room measures 58cm. The wet room itself measures 2.3m x 1.8m and is tiled.
Two bedrooms are located just off the lounge. There is one double bedroom with a door width of 66cm which leads into the room measuring 2.6m x 2.2m. The double room has a bedside table with a built in cupboard for storage. The twin bedroom has a door width of 75cm which leads into the room measuring 3.1m x 2.6 m. The twin room has a bedside table with lamp and also has a built in cupboard for storage. There is a set of patio doors in the twin room leading to the decking which is wrapped around the property. Each door has a width of 56cm which gives a total width of 112cm if both doors were to be open.
The King bedroom can be found on the first floor of the cottage which is up a space saving ladder-type staircase. There are a total of 14 steps leading up to the first floor which have a height of 17cm, width of 55cm and depth of 20cm. The staircase brings you into the King bedroom on the first floor which measures 5.1m x 2.7m. The king bedroom has two bedside tables with lamps, a small wardrobe and chest of drawers. There is an en-suite bathroom off the king bedroom, the door has a width of 65cm. This includes a bath (no over-head shower) and is tiled.
All our 3 bedroom cottages have electric heating, double glazed windows and a front and back entrance/exit. The rear door of the cottages (leading from the kitchen) is 50cm in width, whereas the larger patio sliding doors (leading from the lounge) have a width of 130cm.
3 Bedroom Cottages – External
All of the 3 bedroom Cottages have a heavy wooden picnic bench on the decking area and are open-plan (they are not fenced in). Apart from this, the externals of the 3 bedroom cottages differ slightly to one another. This is because some of the cottages are located on a raised decking with 1 additional step up to the decking and some are on a raised decking with an additional 2 steps up to the decking. Please see specifics below;
SA13 - SA14 are located on a raised decking with 1 additional step up to the decking. The height of the steps leading onto the decking with the sliding patio doors entrance (to the lounge) are both 20cm in height, with a width of 280cm and a depth of 28cm. Whereas, the steps leading onto the decking to the rear door entrance of the property (to the kitchen) has a height of 22cm and 20, with a width of 255cm and a depth of 28cm.
SA45 – SA46 are located on a raised decking with 2 additional steps up to the decking. The height of the steps leading onto the decking with the sliding patio doors entrance (to the lounge) are 20cm, 17cm and 17cm in height, with a width of 260cm and a depth of 28cm. Whereas, the steps leading onto the decking to the rear door entrance of the property (to the kitchen) has a height of 19cm, 19cm and 19cm, with a width of 260cm and a depth of 28cm.

4 Bedroom Houses - Internal
Seaview Holidays has a total of 11 four bedroom houses. The internals of all of our 4 bedroom houses are a mirror image of one another in terms of layout and size (differences only include soft furnishings such as carpets and lino).
A hallway leads on from the front entrance of our 4 bedroom houses. There is a built in cupboard in the entrance hallway which contains the boiler for the house. There is also a hook to hang coats and a cupboard under the stairs for storage.
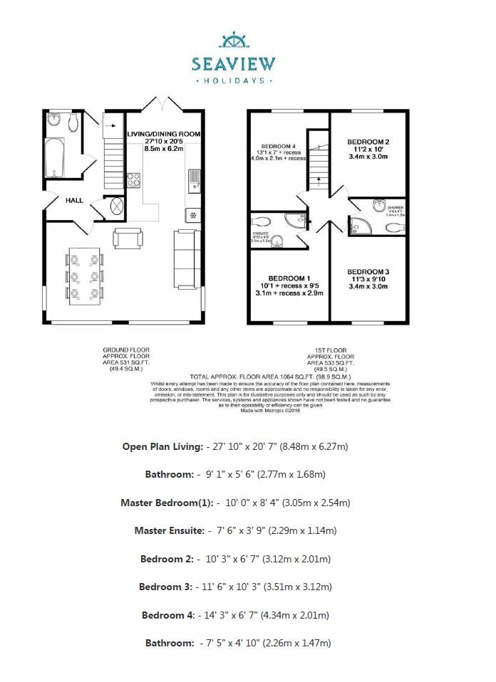
Just off the hallway is the entrance to the kitchen, lounge and dining area. The door has a width of 73cm. Our 4 bedroom cottages have a large open-plan kitchen, lounge and dining area which measures 8.5m x 6.2m. The lounge has two 3 seater faux leather sofas and one 2 seater faux leather sofa. There is a coffee table in the lounge as well as a lamp and lamp table. In the dining area there is a wall mounted television with built in Freeview, large dining table with 8 chairs and a storage cabinet. The kitchen is furnished with a sink, toaster, kettle, microwave, double oven, fridge, freezer, washing machine and utensils. There is a fire blanket on the kitchen wall of every property.
Just off the entrance hallway is a downstairs bathroom with an overhead shower. The door into the bathroom has a width of 58cm, the bathroom measures 2.7m x 1.6m and is tiled.
At the end of the entrance hallway, a staircase leading to the first floor of the 4 bedroom house is located. There is 1 step up to a landing area before the staircase of 12 steps. The step up to the landing is 20cm. The height of each step on the staircase is 18cm, with a width of 68cm and depth of 23cm.
At the top of the staircase is a landing that leads onto the 4 bedrooms; one double with en-suite shower room, one king bedroom, two twin bedrooms and a shower room. All of the bedrooms and shower rooms on the first floor have a door width of 58cm.
Bedroom 1 is a double bedroom and measures 3.1m x 2.9m and includes two bedside tables with lamps, and a small wardrobe. The double bedroom has an en-suite shower room which measures 2.1m x 1.5m and is tiled. Bedroom 2 is a twin bedroom and measures 3.4m x 3m and includes two bedside tables with lamps, and a small wardrobe. Bedroom 3 is a king bedroom and measures 3.4m x 3m and includes two bedside lamps and a small wardrobe. Bedroom 4 is another twin bedroom and measures 4m by 2.1m and includes a bedside table and lamp, and a small wardrobe. All of the 4 bedrooms include a wall mounted television with built in Freeview. There is also a shower room on the second floor which measures 1.4m x 1.2m and is tiled.
All our 4 bedroom houses have electric heating, double glazed windows and a front, back and side entrance/exit. The rear door of the houses (leading from the kitchen) is a patio door with a width of 80cm for each door, therefore the total width if both doors were to be open would be 1.6m. The front door leading into the entrance hallway has a width of 80cm, whereas the smaller side door located at the bottom of the stairs has a width of 68cm.
4 Bedroom Cottages – External
All of the 4 bedroom Houses have a heavy wooden picnic bench on the decking area and are open-plan (some are not fenced in). Apart from this, the externals of the 4 bedroom houses differ slightly to one another. This is because some of the houses are located on a raised decking without an additional step up to the decking and some are on a raised decking with an additional step/s up to the decking. Please see specifics below;
House 1 – House 9 are located on a raised decking without an additional step up to the decking. There is a ramp leading up to the front door of the property, therefore there is no step up to the raised decking. Both the back patio door from the kitchen and the side door from the hallway lead out onto the back decking. There is no ramp to the rear of the property, therefore the decking has a height of 16cm.
Hawthorn Cottage is located on a raised decking with 1 additional step leading up to the front door of the property. The height of the steps is 21cm and 15cm with a width of 120cm and a depth of 48cm. There is not a separate back decking on Hawthorn cottage as the decking wraps around the property.
Cooks Cottage is located on a raised decking with 1 additional step leading up to the front door of the property. The height of the steps is 24cm and 21cm with a width of 188cm and a depth of 44cm. There is not a separate back decking on Cooks cottage as the decking wraps around the property.
